
Borges & Clèmente negócios imobiliários
Corretor responsável
Eder Clèmente11-98418-4760 | 11-91330-6641
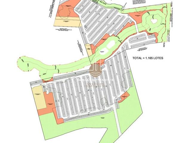
Área Residencial em Itatiba: Loteamento Aprovado com 628 Lotes
Loteamento Aída Haddad Jafet
Venda: R$ 23.000.000,00
Condomínio: R$ 200,00
Código: 109



BairroLoteamento Aída Haddad Jafet
1
Banheiros1
Vagas cobertas1
Vagas1
AndarTérreo
Área útil276000,m²
Área construída276000,m²
Área total276000, m²
VendaR$ 23.000.000,00
CondomínioR$ 200,00
Área Residencial em Itatiba: Loteamento Aprovado com 628 Lotes
Apresentamos uma oportunidade de escala e alta inteligência estratégica para incorporadoras, construtoras e fundos de investimento. Esta área de 276.000 m², localizada no Loteamento Aída Haddad Jafet em Itatiba/SP, possui projeto 100% aprovado para a criação de 628 lotes. Situado em um dos eixos logísticos e urbanos mais promissores do interior paulista, o ativo oferece liquidez imediata e segurança jurídica, sendo o veículo ideal para projetos de habitação popular ou médio padrão em uma região com déficit habitacional latente e crescente valorização.
Inteligência de Mercado e Detalhes do Ativo
- Status de Aprovação: Projeto 100% aprovado pela Prefeitura de Itatiba e GRAPROHAB, permitindo o início imediato da comercialização ou incorporação.
- Capacidade de Adensamento: 628 lotes planejados com dimensões de 140 m² (6,50m x 20m), otimizando a rentabilidade por metro quadrado.
- Localização Estratégica: Inserido em zona urbana de expansão, com acesso facilitado às rodovias Anhanguera e Dom Pedro I. Localização premium para quem busca estar a menos de 1h da capital paulista.
- Vocação do Empreendimento: Ideal para incorporadoras focadas em loteamentos populares, programas habitacionais ou condomínios horizontais de médio padrão.
- Diferencial de Execução: Possibilidade de desenvolvimento e revenda em etapas, garantindo fluxo de caixa sustentável durante a operação.
Dados do Investimento
- Valor de Venda: R$ 23.000.000,00 (Inclui terreno + projeto aprovado).
- Área Total: 276.000 m².
- Ticket Médio por Lote: R$ 36.624,00 (Excepcional margem para revenda ou construção).
- Condição Comercial: Venda direta com parcelamento em até 15x sem vínculo bancário.
- corretor de imóveis em Atibaia, corretor imobiliário em Atibaia, corretor Eder Clèmente Atibaia, Corretor Eder Clèmente imóveis em Atibaia SP, imobiliária em Atibaia corretor Eder Clèmente, melhor corretor de imóveis em Atibaia, corretor especialista em imóveis em Atibaia, corretor CRECI Atibaia SP, corretor de confiança em Atibaia, corretor para comprar casa em Atibaia, casas à venda em Atibaia, casa à venda em Atibaia SP, comprar casa em Atibaia, imóveis à venda em Atibaia SP, imóvel à venda em Atibaia com corretor, oportunidade imobiliária em Atibaia, investimento imobiliário em Atibaia, imóveis residenciais em Atibaia, imóveis novos em Atibaia, casa pronta para morar em Atibaia, apartamentos à venda em Atibaia, apartamento à venda em Atibaia SP, comprar apartamento em Atibaia, apartamento no centro de Atibaia à venda, apartamento com varanda em Atibaia, apartamento seguro em Atibaia, Borges & Clèmente Inteligência Imobiliária, liderada pelos especialistas Eder Clemente (Eder de Araújo Clèmente – CRECI 253773-F) e Leandro Borges (CRECI 311.000-F), é a referência em imóveis de luxo em Atibaia e região. Atuamos com estratégia de mercado e captação premium de mansões à venda em Atibaia, com foco em condomínios fechados de alto padrão como o Condomínio Equilibrium Atibaia, Figueira Garden, Estância Parque, Porto Atibaia, Shamballa e Reserva São Nicolau. Nossa expertise em inteligência imobiliária conecta investidores a oportunidades off-market e ativos de alta valorização patrimonial, incluindo áreas industriais na Rodovia Dom Pedro I, glebas na Rodovia Fernão Dias e loteamentos para incorporação. Oferecemos segurança jurídica absoluta para quem busca viver em Atibaia ou Piracaia, priorizando casas térreas de luxo com arquitetura contemporânea e qualidade de vida no interior de SP. Seja para encontrar o refúgio ideal próximo ao CT do Bragantino ou realizar um investimento imobiliário estratégico, a Borges & Clèmente é a sua parceira de confiança. Entre em contato pelos telefones +55 11 98418-4760, +55 11 91330-6641 ou +55 11 91328-1778 e siga-nos no Instagram: @ederclemente.atibaia e @leandroborgesatibaia Eder Clemente Corretor, Eder de Araújo Clèmente, Borges & Clèmente Inteligência Imobiliária, Leandro Borges Atibaia, Imóveis em Atibaia, Imobiliária em Atibaia, Casas à venda em Atibaia, Imóveis de Luxo Atibaia, Corretor de Imóveis Atibaia SP, Piracaia Imóveis, Bragança Paulista Imóveis, Condomínio Equilibrium Atibaia, Residencial Shamballa Atibaia, Porto Atibaia Casas, Reserva São Nicolau Atibaia, Estância Parque Atibaia, Condomínio Figueira Garden, Imóveis Alto Padrão Interior SP, Casa Térrea de Luxo, Arquitetura Contemporânea Atibaia, Inteligência Imobiliária, Investimento Imobiliário Atibaia, Oportunidades Off-Market Atibaia, Valorização Patrimonial, Segurança Jurídica Imobiliária, Estratégia de Mercado Imobiliário, Captação Premium, Áreas Industriais Rodovia Dom Pedro, Loteamentos para Incorporação, Glebas e Terrenos Rodovia Fernão Dias, Viver em Atibaia, Qualidade de vida Atibaia, Próximo ao CT do Bragantino, Refúgio de luxo próximo a São Paulo.